Beskrivning

Östra Lerberget

Söder om centrala Höganäs växer det nya bostadsområdet Östra Lerberget fram – ett trivsamt och hållbart kvarter med närhet till havet, förskolor, parker och Höganäs charmiga centrum med caféer, saluhall och butiker. Här uppförs åtta moderna kedjehus i två plan, utformade med småstadskänsla längs lugna gårdsgator och gröna parker. Ett boende där arkitektur, vardagsliv och omgivning samspelar på ett naturligt sätt.

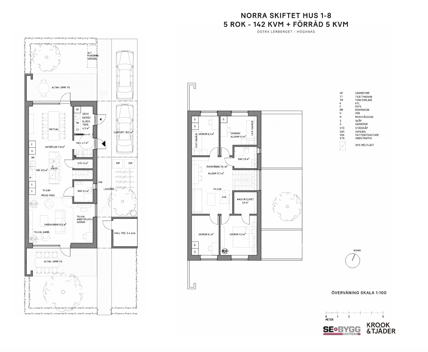
Husen är noggrant planerade för att skapa maximal kontakt mellan inne och ute. Kök och matplats vetter mot angöringsgatan i norr, medan vardagsrummet öppnar sig mot parken i söder. Genom att placera kök, matplats och vardagsrum i fil skapas långa siktlinjer från gata till park – en lösning som ger ljus, rymd och kontakt med både grannskap och grönska.

Entréplanet präglas av öppna sociala ytor där kök, matplats och vardagsrum binds samman i ett naturligt flöde med kontakt både mot gatan och uteplatsen vid parken. Entrén är skyddad under carporten och kompletteras av en separat groventré med direkt access till tvättstuga och förråd. Vardagsrummet har kontakt med den inre gården och möjlighet till ett extra rum mot ljusgården, till exempel ett hemmakontor eller extra rum.

Ovanpå detta vilar en mer traditionell övervåning med sadeltak och fyra sovrum, ett badrum och ett rymligt allrum som fungerar som ett extra sällskapsutrymme. Förvaring finns både vid carport och på vinden, som har ståhöjd och erbjuder gott om plats.

Varje hus har egna uteplatser på både fram- och baksida, ljusgård med grönska och plats för cyklar, samt carport med genomgående passage mellan fram- och baksida. Husen byggs med hållbara material, energieffektiva lösningar och låg klimatpåverkan.

Planritning

Husen i kvarteret Östra Lerberget är äganderätter om 131 kvadratmeter fördelade på 4 sovrum, 2 badrum, hall, groventré, kök och vardagsrum, med möjlighet till ytterligare ett sovrum. Varje bostad har egna uteplatser både mot gatan i norr och mot parken i söder. Husen kläs i varierade tegelmönster, med fasader mot carport och atrium i trä. Taken utförs som traditionella skånska listtäckta papptak med sedum på carport och förråd. Tomterna avgränsas med avskiljande murar som skapar privata zoner mellan bostäderna. 

Kontakt

Kontaktpersoner

Kvarteret i Östra Lerberget uppförs av SE-Bygg i samarbete med arkitektfirman Krook & Tjäder och mäklarbyrån Länsförsäkringar Fastighetsförmedling i Höganäs.

Lotta Olofsson

Franchisetagare och reg. fastighetsmäklare på Länsförsäkringar Fastighetsförmedling i Höganäs.

Jens Setterberg

Arkitekt på Krook & Tjäder.

Tim Carlson

Projektansvarig på SE-Bygg.